EM05-140 / Qarajın üstündə nəhəng terrası olan modern üslubunda iki mərtəbəli ev


Previous
Next
EM05-140 / Qarajın üstündə nəhəng terrası olan modern üslubunda iki mərtəbəli ev
Artikul: EM05-140
Mərtəbələrin sayı: 2
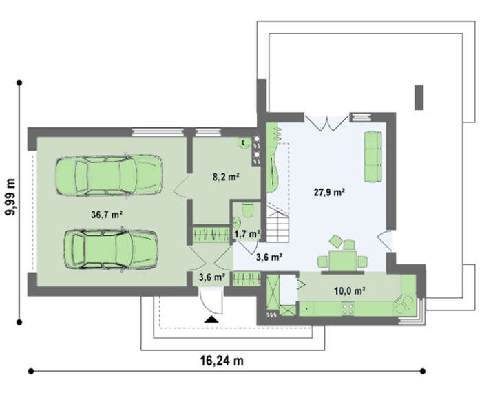
Ümumi sahə: 140.60 kv.м
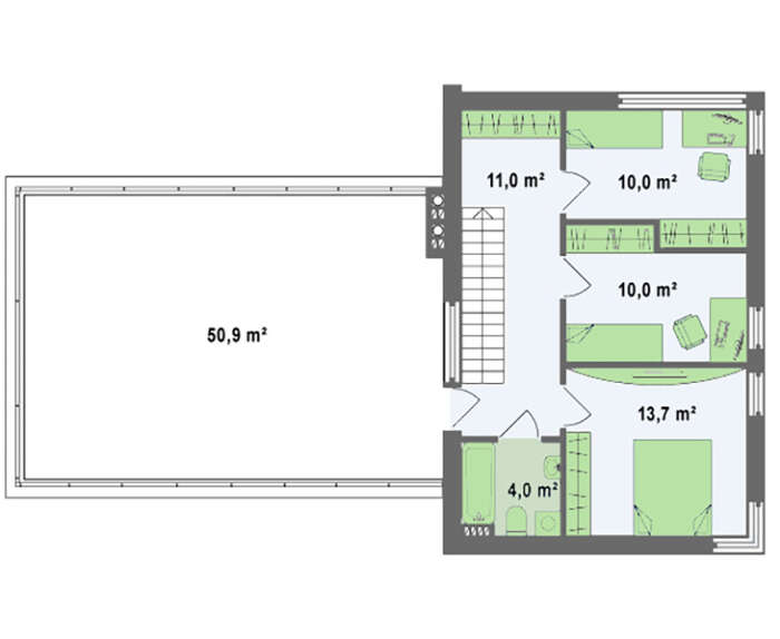
Yaşayış sahə: 95.60 kv.м
Evin hündürlüyü: 7.00 м
Tavanın hündürlüyü: 2.80 м
Damın sahəsi: 107.00 kv.м
Yataq otağların sayı: 3
Sanitar qovşaqların sayı: 2
Qaraj: 2 maşınlıq qaraj
Sahənin minimal uzunluqu: 24.24 м
Sahənin minimal ennisi: 17.84 м
Materiallar:
Divarlar: Mişar daşı
Döşəmə: Monolit beton
Dam örtüyü: PVC membran
Bünövrə: Lentvari



