EM04-165 / Düz damı və 1 maşınlıq qarajı olan iki mərtəbəli evin layihəsi

EM04-165 / Düz damı və 1 maşınlıq qarajı olan iki mərtəbəli evin layihəsi
Artikul: EM04-165
Mərtəbələrin sayı: 2
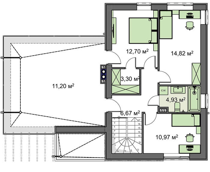
Ümumi sahə: 156.71 kv.м
Yaşayış sahə: 69.12 kv.м
Evin hündürlüyü: 7.50 м
Tavanın hündürlüyü: 2.80 м
Damın sahəsi: 60.00 kv.м
Yataq otağların sayı: 3
Sanitar qovşaqların sayı: 2
Qaraj: 1 maşınlıq qaraj
Sahənin minimal uzunluqu: 18.00 м
Sahənin minimal ennisi: 22.00 м
Materiallar:
Divarlar: Mişar daşı
Döşəmə: Monolit beton
Dam örtüyü: PVC membran
Bünövrə: Lentvari



