EM03-181 / Terras və 2 maşınlıq qarajı olan müasir ev layihəsi


Previous
Next
EM03-181 / Terras və 2 maşınlıq qarajı olan müasir ev layihəsi
Artikul: EM03-181
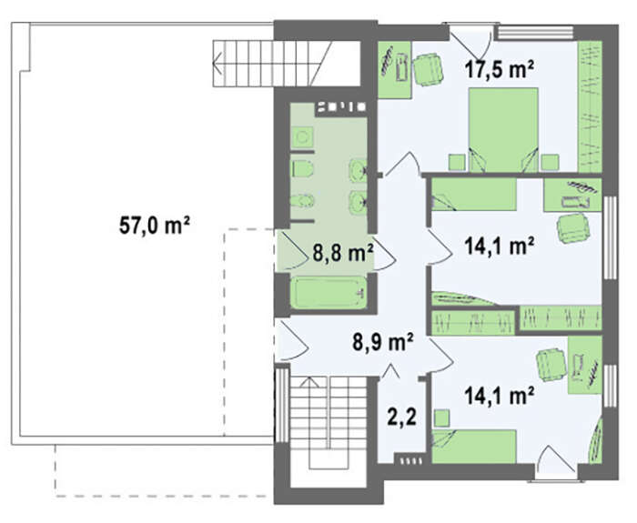
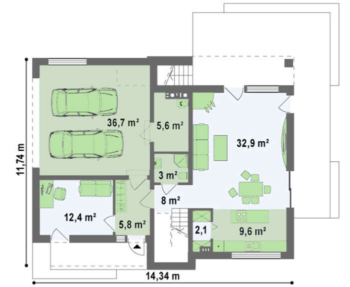
Mərtəbələrin sayı: 2
Ümumi sahə: 181.50 kv.м
Yaşayış sahə: 139.30 kv.м
Evin hündürlüyü: 7.10 м
Tavanın hündürlüyü: 2.80 м
Damın sahəsi: 75.00 kv.м
Yataq otağların sayı: 4
Sanitar qovşaqların sayı: 2
Qaraj: 2 maşınlıq qaraj
Sahənin minimal uzunluqu: 19.04 м
Sahənin minimal ennisi: 22.34 м
Materiallar:
Divarlar: Mişar daşı
Döşəmə: Monolit beton
Dam örtüyü: PVC membran
Bünövrə: Lentvari bünövrə



