EM01-265 / Daxili qaraj ilə olan müasir iki mərtəbəli evin layihəsi





Previous
Next
EM01-265 / Daxili qaraj ilə olan müasir iki mərtəbəli evin layihəsi
Artikul: EM01-265
Mərtəbələrin sayı: 2
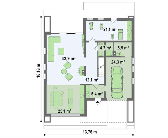
Ümumi sahə: 265.00 kv.м
Yaşayış sahə: 101.42 kv.м
Evin hündürlüyü: 7.18 м
Tavanın hündürlüyü: 2.80 м
Damın sahəsi: 163.10 kv.м
Yataq otağların sayı: 3
Sanitar qovşaqların sayı: 3
Qaraj: 1 maşınlıq qaraj
Sahənin minimal uzunluqu: 21.76 м
Sahənin minimal ennisi: 24.16 м
Materiallar:
Divarlar: Mişar daşı
Döşəmə: Monolit beton
Dam örtüyü: PVC membran
Bünövrə: Lentvari bünövrə



