fbpx

EK02-211 / Böyük pəncərələri olan iki mərtəbəli ev

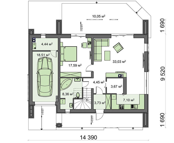
Birinci mərtəbənin planı
İkinci mərtəbənin planı
Sahədə yerləşmə planı

EK02-211 / Böyük pəncərələri olan iki mərtəbəli ev

Artikul: EK02-211
Mərtəbələrin sayı: 2
Ümumi sahə: 211.68 kv.м
Yaşayış sahə: 102.50 kv.м
Evin hündürlüyü: 8.52 м
Tavanın hündürlüyü: 2.80 м
Damın sahəsi: 171.00 kv.м
Yataq otağların sayı: 4
Sanitar qovşaqların sayı: 3
Qaraj: 1 maşınlıq qaraj
Sahənin minimal uzunluqu: 20.54 м
Sahənin minimal ennisi: 21.04 м

Materiallar:

Divarlar: Mişar daşı
Döşəmə: Monolit beton
Dam örtüyü: Metal və keramika örtüyü (Çerepitsa)
Bünövrə: Lentvari bünövrə